Freydordstr - Karlsruhre
Descrição
Os três edifícios residenciais da Freydorfstr. fazem parte do antigo quartel de Granadeiros, que desde 2020, de acordo com o §12 da Lei de Proteção ao Patrimônio, foi classificado como um monumento cultural de especial importância, estando sob proteção reforçada.
Os três edifícios da Freydorfstr. 3, 5 e 7 fazem parte do quartel de Granadeiros, que foi construído entre 1893 e 1897 para o Regimento de Granadeiros de Baden nº 109. Estas três casas foram usadas como alojamento para oficiais e sargentos casados. Em decorrência do Tratado de Versalhes, foi criada uma zona desmilitarizada e o quartel foi desativado em 1919. Em 1936, as unidades da polícia estadual que estavam no quartel foram incorporadas ao recém-formado I Regimento de Infantaria 109 do exército alemão. Em 1952, o exército francês assumiu toda a instalação, que passou a ser chamada de "Quartier General Pagezy". Em 1991, as forças armadas francesas desocuparam o antigo quartel de Granadeiros. A partir de 1993, a antiga instalação do quartel transformou-se num centro administrativo do estado de BadenWürttemberg, que hoje abriga a Direção de Investigação Aduaneira, o Centro de Mídia Estadual, a Agência Estadual de Patrimônio (sucursal) e a Delegacia de Polícia de KarlsruheOeste.
Karlsruhe é uma cidade situada na planície do Alto Reno. Com 308.707 habitantes, Karlsruhe é a terceira maior cidade do estado de Baden-Württemberg. A cidade possui uma excelente conexão viária com o sul da Alemanha e a rede internacional de autoestradas, através da A 5 com seis faixas e da B 10 com duas faixas. O Aeroporto Regional Karlsruhe/Baden-Baden, também chamado de Aeroporto de Baden, pode ser alcançado em cerca de 35 minutos. Os aeroportos de Stuttgart e Estrasburgo estão a aproximadamente 60 minutos, e o aeroporto internacional de Frankfurt a cerca de 90 minutos. No tráfego ferroviário regional e internacional, o entroncamento ferroviário de Karlsruhe tem uma importância especial, pois está no ponto de cruzamento de eixos de trânsito internacionais tanto para transporte de passageiros quanto de carga. A conexão TGV Munique – Paris passa por Karlsruhe. O terminal de contêineres de Karlsruhe está integrado ao transporte ferroviário de carga trans europeu, no corredor de trânsito 24 (Roterdã-Gênova). O projeto denominado "Modelo Karlsruhe" de transição contínua de linhas de metrô para os trilhos da Deutsche Bahn revolucionou, nos anos 1990, o transporte público local em Karlsruhe e arredores, criando uma rede total de 500 km. A localização Freydorfstr. 3, 5 e 7 está excelentemente conectada à rede viária pública e à infraestrutura de transporte público da cidade de Karlsruhe.
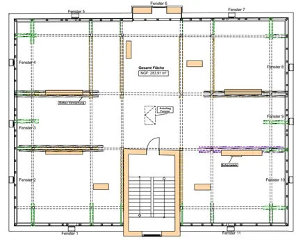
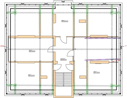
Os três edifícios da Freydorfstr. 3+5+7 foram utilizados exclusivamente para fins residenciais desde a sua construção em 1895. O rés-do-chão é constituído por um piso elevado. As habitações são acessadas através de uma escadaria central generosamente concebida. O número de apartamentos nos três edifícios varia devido aos diferentes layouts dos apartamentos. Os tamanhos das habitações variam entre cerca de 45 a 115 m². Os edifícios existentes, com quatro andares e cave, foram construídos em alvenaria maciça por volta de 1895, de acordo com as práticas construtivas da época. Os tetos da cave são em abóbada de alvenaria ou em lajes de alvenaria perfuradas com perfil de aço. Os tetos acima dos apartamentos são em vigas de madeira com um revestimento de tábuas de madeira de 4 cm de espessura. No Edifício 7, partes dos tetos do rés-do-chão e do primeiro andar já foram convertidos em lajes de alvenaria perfuradas. Os tetos em vigas de madeira do segundo andar têm a mesma estrutura em todos os edifícios. A alvenaria portante é provavelmente fundada de forma plana e típica da época de construção, como um "fundo em faixa" em alvenaria. Como é claramente visível, o edifício do meio, o Edifício 5, tem três eixos de suporte de parede interior. Os edifícios externos 3 e 7 têm apenas dois eixos de suporte de parede interior. Essa é a principal diferença entre os tipos de edifícios 3/7 e 5, sendo que, de resto, a construção é fundamentalmente idêntica. No entanto, o Edifício 5 já foi renovado nos anos 90 e convertido em diferentes pisos. No sótão, foram instaladas coberturas de madeira que hoje só podem ser removidas com um esforço estático adicional. As paredes internas maciças não suportadas (paredes de condutas de ventilação) já foram removidas no Edifício 5.
Atualmente, está prevista a realização do projeto em fases separadas devido aos requisitos de preservação do patrimônio, com o início na Freydorfstr. 5, onde já ocorreu uma adaptação do layout no térreo e no 1º ao 2º andares, o que pode resultar em uma conclusão acelerada.




















